伝統工法による1/5スケール住宅模型





○ 展示模型は、近年急激に減ってきましたが尚、滋賀県地方で現在も建てられている伝統工法住宅の 典型であり、継手仕口の工作法も可能な限り

本物に忠実に製作したものです。

 多くの木造建築の研究者や実務家が集まるこの機会に模型を展示し、見る人々に伝統工法に対する 郷愁を呼び覚まし、伝統工法が末永く存続して

行ける事を願って展示しました。

 この模型の特徴は、伝統工法の中でも最も重要で肝心な技術であるのに現在あまり使われなくなって しまった次の二つの技法を取り入れ、今後の

建築に採用して頂き、この技法が復活して 行くことを願ったものです。


1、横架材引合部に用いる「長ホゾ差し車知引き胴栓打ち」の技法

2、差し鴨居四方差しに用いる「眼鏡ホゾ差し車知引き胴栓打ち」の技法


 これらの方法を理解して頂く為に、その部分をS=1/2まで拡大してそれが自由に嵌め外し出来る様にした部分模型も作成致しました。

今後大工職の方々にも見て頂いて、是非 簡略化しないで用いて欲しいと思っています。           株式会社 西澤工務店 西澤政男






長ホゾ差し車知引き胴栓打ち」

胴差しは野物と想定して長ホゾは前後左右を上半分下半分として上と下から車知で引き胴栓打ち









「眼鏡ホゾ差し車知引き胴栓打ち」

 
鴨居四方差しに用いる工作法で、横方向は大きな長ホゾで車知引胴栓打ちとし、そのホゾに縦方向の

ホゾを通すための窓を穿ち縦方向のホゾを通して車知引とし胴栓を打つ。胴栓太さは15×18又は18×21

鴨居四方差しは2室長押打用ヤロウ溝突き、欄間敷居 造り出しアリ壁は左官仕上仕様に造り出し。







 

組立の様子













伝統工法住宅に用いられている継手・仕口 アイソメ












桁等の継手に用いられる追掛大栓継と金輪継






 
開口部の差鴨居と柱の仕口には長ホゾ差しに込栓、胴栓で固めます。















継手の種類












下屋部分の桁繋は胴差と長ホゾで引き合いにしています。











柱四方差し  胴差しと桁繋ぎは車知引き胴栓打ち 











小屋梁の継手は地棟の上で台持継ぎにしています。



地棟と小屋梁との仕口は渡顎(わたりあご)にしています。






地棟と小屋梁の継手 台持ち継ぎ 渡り顎










差し鴨居の1/2スケール模型

長押を取付るための「ヤロウ溝」を加工しています。









屋根の破風板と母屋の仕口は「引独鈷(ひきどっこ)」にしています。







破風板の仕口加工





母屋と引独鈷(どっこ)。車知栓で引き付け胴栓で固めます。





引独鈷(どっこ)と母屋









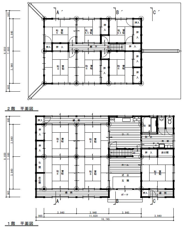
1/5スケール住宅模型 図面













■H17年 5月 NPO木の建築フォラム 東京大学にて展示しました。
 



■同 年10月  埼玉 住まい まちづくり2005交流展にて展示しました。




■同 年11月  新木場木まつり 新木場センタービルにて展示しました。





■同 年11月  伝統木構造の会総会 工学院大学にて展示しました。


   ■H18年10月より関西大学にて模型を振動台実験機で変形性能を検証中。


 ■H27年3月より 西澤工務店 研修所 にて 住宅模型を 展示中。

 

home